By using our site, you agree to our Terms of Use and Privacy Policy.
Dismiss
Home ON Hastings Bancroft
HARRINGTON ESTATES
Directions Print
$0
Favourite

187 BRADSHAW RD
Bancroft, Ontario K0L2L0

MLS® Number: X5427778
3
Bedrooms
2
Bathrooms

Description

This Beautifully Renovated Home Sits On Approximately 55 Acres With Over 750Ft Of Frontage On Egan Creek (Suitable For Kayaking/Swimming). This Fantastic Private Setting Offers Endless Possibilities With Dense Forest, Clearings And Walking Trails! Hop Onto District Atv/Snowmobile Trails Just A Minute Away. 2021 Renos Inc:Roof(20Yr),Soffit/Fascia,Vinyl Siding,Windows/Doors,Furnace/Ac/Ductwork,Flooring,Kitchen/Appliances & Baths/Plumbing. Move In And Enjoy!**** EXTRAS **** Include: Fridge, Stove, Dishwasher, Bath Mirrors & All Elfs. Lots Of Wildlife And Peacefulness! Two Log Barns (As Is, One Barn With Upper Level And Concrete Floor, One With Two Stalls). Additional Building (As Is) Is Ready For Your Ideas! (29240628)

Property Summary

Property Type
Single Family
Building Type
House
Storeys
1
Title
Freehold
Land Size
870.31 x 2057.23 FT ; Irregular As Per Deed/Title|50 - 100 acres
Annual Property Taxes
$3,182.12
Total Parking Spaces
4
Time on REALTOR.ca
15 days

Building

Bedrooms
Above Grade
3
Bathrooms
Total
2
Interior Features
Basement Features
Walk out
Basement Type
N/A (Unfinished)
Building Features
Features
Level lot, Wooded area, Partially cleared
Style
Detached
Architecture Style
Bungalow
Heating & Cooling
Cooling
Central air conditioning
Heating Type
Forced air (Propane)
Utilities
Utility Type
Electricity (Installed)
Exterior Features
Exterior Finish
Vinyl
Parking
Total Parking Spaces
4

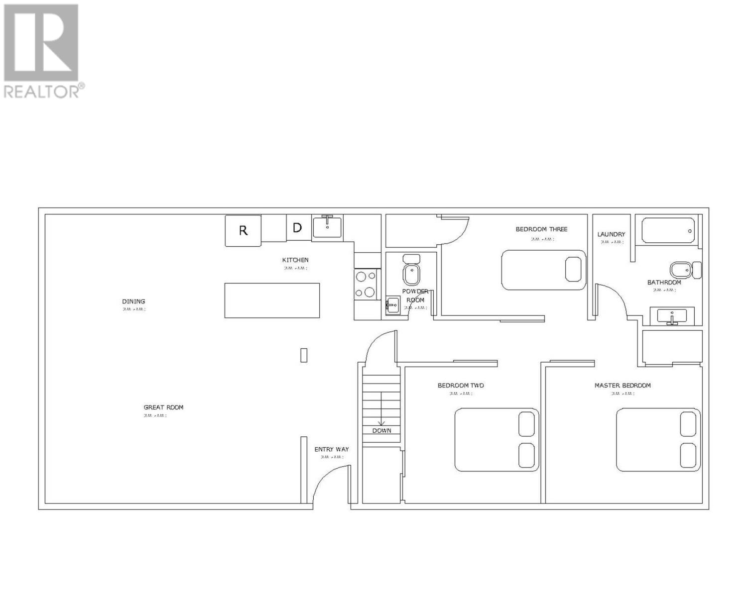
Rooms

MetricImperial
Main level
Kitchen
12 ft ,2 in x 9 ft ,5 in
Great room
22 ft ,11 in x 20 ft ,2 in
Dining room
22 ft ,11 in x 20 ft ,2 in
Bedroom
12 ft ,6 in x 10 ft ,8 in
Bedroom 2
10 ft ,8 in x 10 ft ,8 in
Bedroom 3
12 ft ,6 in x 8 ft
Bathroom
8 ft ,7 in x 8 ft

Land

Waterfront Features
Waterfront
Waterfront
Surface Water
River/Stream
Picture breakout:
Cottage Exterior Cottage Exterior 2 Cottage Exterior 3 Cottage Living Room Cottage Hallway Cottage Interior View From Front Doorway Cottage Interior View From Corner of Living Room Cottage Interior View From Kitchen Cottage Interior View From Kitchen 2 Cottage Interior View From Corner of Living Room 2 Cottage Kitchen Cottage Kitchen 2 Cottage Kitchen 3 Cottage Kitchen 4 Cottage Hallway 2 Cottage Hallway 3 Cottage Bedroom 1 Cottage Bedroom 1 -2 Cottage Powder Room Cottage Bedroom 2 Cottage Bedroom 2 -2 Cottage Washroom Cottage Washroom 2 Cottage Layout Log Home & Barn Bunkie & Log Home Bunkie Property Entrance Overhead view of property Overhead view of property 2 View from Bunkie Property lines Egan Creek on Property Egan Creek on Property 2 Property's Swimming Spot on Egan Creek
KEITH BUTLER
Feedback